弊社取扱い物件情報
12.232025
新築未入居マンション情報:文京区本郷
*こちらの物件は成約済みとなりました*
都営大江戸線・丸ノ内線「本郷三丁目」駅徒歩5分、大変利便性の良い立地にある新築未入居のマンションです。
【外観】

【眺望】

【室内】

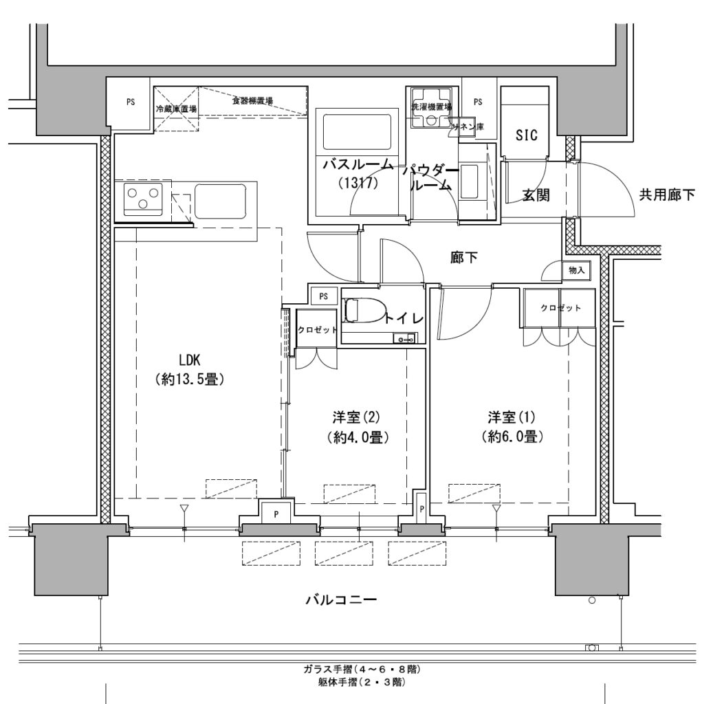
【間取り】

【オススメポイント】 複数路線を徒歩圏で利用可能な好立地にあり、新築未入居のお部屋です。今後も希少価値の高まるエリアです。
本物件に関するお問合せ、内覧のご予約は下記までお願い致します。 現況空室のため、ご内覧は随時受付をしております。 ※既にご成約済みとなりました際にはご了承くださいませ。
株式会社Do The Right Thing 担当:牛田
TEL:03-6447-0111 メールのお問合せはこちらをクリックしてください
【物件概要】
■ブランズ本郷■専有面積:55.31平米 ■所在地:東京都文京区本郷1-28-29■交通:都営大江戸線・丸ノ内線「本郷三丁目」駅徒歩5分■土地権利:所有権 ■用途地域:近隣商業地域■構造:鉄筋コンクリート造地上14階建て地下1階 ■総戸数:90戸 ■築年月:2025年9月築 ■分譲会社:東急不動産株式会社■施工会社:株式会社浅沼組■管理方式:全部委託 日勤■管理会社:株式会社 東急コミュニティ■取引態様:仲介 ■現況:空室 ■引渡し:即時 その他
最近のお知らせ
-
2025/12/29
-
2025/12/3
-
2025/12/23
-
2025/12/22
-
2025/10/24
-
2025/10/30








